You can arrange a tour with the contact person, see "contact." Further link: https://www.tcp-as.cz/pronajem/ Virtual tour: https://my.matterport.com/show/?m=6NudkmypKAD
Leasing through a tender process (bids from applicants), see links.
| State: | before construction |
|---|---|
| Floor/location: | 3.NP |
| Elevator: | |
| Used area: | 720 m2 |
| Energy demand of the building: | G |
| Heating: | central remote |
| Construction year: | 1984 |
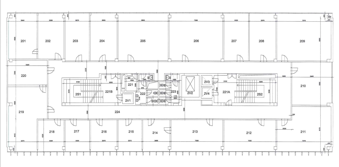
The City of Prague is offering office space for rent with a total area of 719.88 m² on the 2nd floor of the building at Bystřická 1709/9 in Prague 4. These are offices of various sizes ranging from 11 m² to 48 m², located throughout the building. Layout changes and modifications are possible. The office space has its own bathroom facilities. There is a reception area with security service in the entrance hall. The landlord offers the office space in its original condition. Due to the expected change in the use of the entire building in the future, the landlord will not renovate the space. Advance payments for services include the costs of heating, hot water, water and sewage, elevator operation, cleaning of common areas, common electricity, and waste disposal. The building was originally built for the Czech Post in 1984. Its location near the Pankrác metro station on line C provides tenants with excellent public transport accessibility by tram and bus and a complete infrastructure. A new metro line D is currently under construction in the immediate vicinity of the building.
Show more